פנטהאוז בפרויקט בוטיק בבודנהיימר

נמכר
קוד נכס 30221
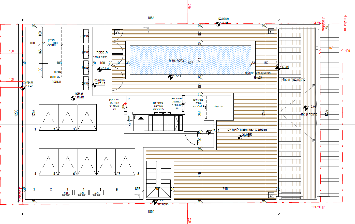
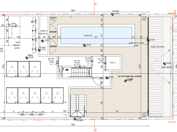
פנטהאוז נדיר עם בריכה פרטית ברחוב בודנהיימר היוקרתי. חוו את שיא החיים האורבניים בפנטהאוז יוצא דופן, בלב אחד הרחובות המבוקשים ביותר בצפון הישן של תל אביב. הפנטהאוז מציע שילוב מרשים של אלגנטיות, נוחות ויוקרה מודרנית על פני כ־223 מ"ר בנויים, מרפסת רחבה בשטח של כ־38 מ"ר הנפתחת ישירות מהסלון ומזמינה את האור והאוויר הפתוח פנימה, בעוד שגג פרטי מרהיב בשטח של כ־105 מ"ר מהווה את גולת הכותרת – עם בריכת שחייה בשטח של כ־25 מ"ר, נוף פנורמי לעיר, ושפע של מקום לאירוח, ישיבה וארוחות תחת כיפת השמיים. הפנטהאוז משתרע על כל הקומה ונהנה ממפרט טכני עשיר במיוחד, שני מקומות חניה בחניון תת קרקעי ותכנון מדויק לפרטים הקטנים ביותר. רמת הגימור הגבוהה לצד אפשרויות גמישות להתאמה אישית מבטיחים חוויית מגורים ייחודית ונוחה במיוחד. המיקום האידאלי בצפון הישן של תל אביב מאפשר גישה מהירה לפארק, מסעדות, חנויות ואתרי תרבות, והופך את הפנטהאוז הזה ליותר ממקום מגורים – הוא סמל לאיכות חיים אמיתית, נדירה ומוקפדת.
6 חדרים
קומה 4
366 מ"ר
חניה
מעלית
מרפסת
מחסן
בריכת שחייה
25,545,000
בודנהיימר לחיות היכן שהשקט והיוקרה נפגשים
בודנהיימר לחיות היכן שהשקט והיוקרה נפגשים
פרויקט ייחודי בשיווק בלעדי. בלב הצפון הישן, השקט והפסטורלי של תל אביב – נבנה פרויקט בוטיק יוקרתי וייחודי. בניין בן 4 קומות בלבד, הכולל 10 דירות מעוצבות בקפידה, המשלבות בין איכות חיים גבוהה לבין סביבת מגורים שקטה וירוקה. לכל דירה חנייה תת-קרקעית מסודרת ומחסן פרטי, לנוחות מרבית ותחושת ביטחון מושלמת. זוהי הזדמנות נדירה לגור בשכונה הנחשקת ביותר בעיר – בקרבה לפארק הירקון, בתי קפה, מוסדות תרבות והים – ועם זאת, באווירה אינטימית ושלווה.
מידע נוסף על הפרויקט ונכסים