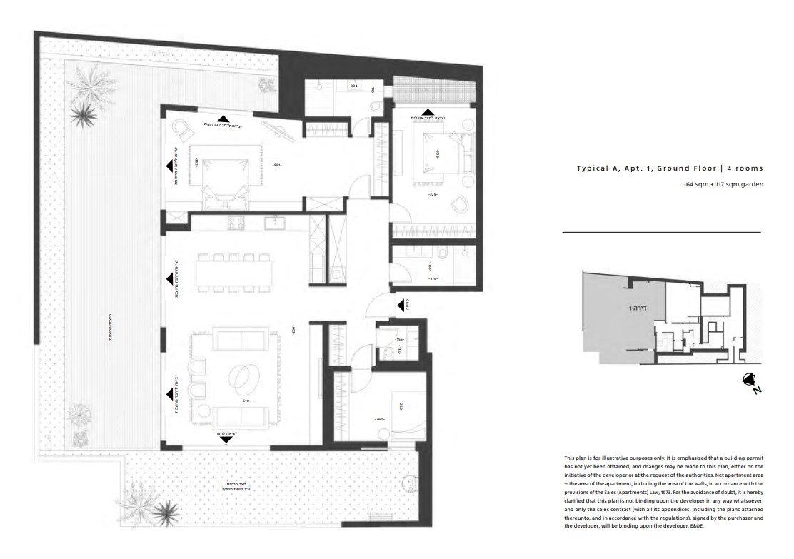
דירת גן 4 חדרים בקרבת הים

קוד נכס 29909
ברחוב קטן במרכז העיר וקרבת הים. דירת גן בת 4 חדרים בשטח של כ 164 מ״ר ועוד 117 מ"ר גינה, מחסן גדול ו2 חניות בטאבו.
4 חדרים
קומת קרקע
281 מ"ר
חניה
מעלית
מחסן
חצר
16,050,000
פרויקט אייקוני בקרבת הים
פרויקט אייקוני בקרבת הים
בפרויקט מרשים בשלבי בניה ובסטנדרט גבוה ואיכותי, אייקון בצפון הישן של תל אביב.7 קומות - 12 וילות עירוניות, כל אחת והמאפיינים היחודיים ההופכים אותה ליצירה בפני עצמה. התמהיל כולל דירות יוקרה הנהנות מפרטיות של 2 דירות בקומה, דירות גן ופנטהאוז יחיד בקומה. לכל אחת מהדירות שתי חניות (חניות רגילות תת קרקעיות) עם מחסן גדול והן ימסרו בגמר ובעיצוב מלא.
מידע נוסף על הפרויקט ונכסים