3 חדרים בפרויקט בקרבת גן העיר

קוד נכס 26433
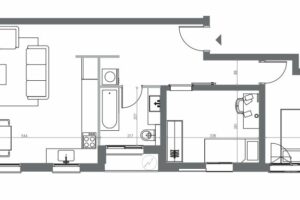
בפרויקט הריסה בניה חדשה בקרבת גן העיר. דירת 3 חדרים, חזיתית בקומה החמישית. פונה למזרח ודרום, בשטח של כ 85 מ"ר + 8 מ"ר מרפסת. חניה בטאבו.
3 חדרים
קומה 5
93 מ"ר
חניה
מעלית
מרפסת
6,250,000
פרויקט הריסה ובניה בקרבת גן העיר
פרויקט הריסה ובניה בקרבת גן העיר
ברחוב שקט בקרבת גן העיר, בפרויקט הריסה ובניה בשלבי בניה! מוצעות למכירה מספר יחידות בנות 4,3 חדרים, דירת גן בת 5 חדרים ופנטהאוס. לכל הדירות חניה בטאבו.
מידע נוסף על הפרויקט ונכסים