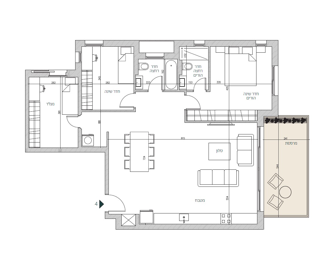
Parkview 4 Rooms Apt

Property code 30467
In a prestigious project, on the first line to Yarkon Park. A 4-room apartment of approximately 113 sqm with a 14 sqm front-facing sun terrace overlooking the open views of the park. Includes standard underground parking.
4 Rooms
Floor 6
127 sqm
Parking
Elevator
Balcony
8,925,000
A New Project Facing The Park
A New Project Facing The Park
A new development on the front line of the Yarkon Park, offering a rare and highly sought-after residential experience in the Old North of Tel Aviv. The project creates a perfect balance between urban nature and modern city living, with a façade facing the park’s open green landscapes, just steps from walking, running, and cycling paths. The apartment mix is diverse, featuring spacious residences alongside stunning penthouses, all meticulously planned and finished to a high standard. The project includes regular underground parking spaces. An ideal setting for those who want to enjoy the vibrant city while experiencing the daily serenity, greenery, and fresh air of Yarkon Park.
More about the project it's properties