Parkview Penthouse

Property code 30451
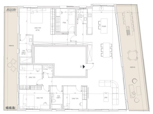
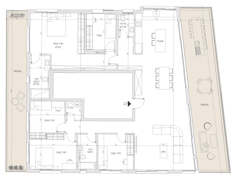
The project’s luxurious penthouse sets a new benchmark for boutique living. An entire floor, 5-room residence offering approximately 204 sqm of smart, high-end design. A 45 sqm front terrace overlooks the open views of Yarkon Park, while a 28 sqm rear terrace provides the perfect setting for entertaining, peace, and privacy. Includes a private storage room and two underground parking spaces.
5 Rooms
Floor 6
277 sqm
Parking
Elevator
Balcony
Storage
26,600,000
Frontline To The Park
Frontline To The Park
A boutique six-story building designed by Grosbard & Vinzigster sets a new benchmark for urban luxury. Its clean lines, elegant detailing, and harmonious architecture blend naturally with the open landscapes of Yarkon Park just across the street. The project includes two premium boutique buildings facing the park, offering a rare residential experience in one of the city’s most desirable locations. Residents enjoy direct proximity to green surroundings, walking and cycling paths, convenient underground parking, and an exceptional quality of life that combines tranquility with city vibrancy. A unique opportunity to live steps from the park, surrounded by greenery while remaining in the heart of Tel Aviv.
More about the project it's properties